Algemeen
Royale vrijstaande woning met grote garage, bijkeuken en slaapkamer met badkamer op de begane grond.
Aan een brede, groene straat in een rustige woonwijk van Burgum staat deze royale en goed onderhouden vrijstaande woning. De woning biedt verrassend veel leefruimte, een heerlijk lichte woonkamer, een royale slaapkamer met aansluitende badkamer op de begane grond, een ruime bijkeuken en een e... Meer informatie
Aan een brede, groene straat in een rustige woonwijk van Burgum staat deze royale en goed onderhouden vrijstaande woning. De woning biedt verrassend veel leefruimte, een heerlijk lichte woonkamer, een royale slaapkamer met aansluitende badkamer op de begane grond, een ruime bijkeuken en een e... Meer informatie
-
Kenmerken
Alle kenmerken Type object Woonhuis, eengezinswoning, vrijstaande woning Bouwperiode 1995 Status Verkocht onder voorbehoud Aangeboden sinds Donderdag 9 oktober 2025 -
Locatie
Kenmerken
| Overdracht | |
|---|---|
| Referentienummer | 00434 |
| Vraagprijs | € 625.000,- k.k. |
| Status | Verkocht onder voorbehoud |
| Aanvaarding | In overleg |
| Aangeboden sinds | Donderdag 9 oktober 2025 |
| Laatste wijziging | Woensdag 22 oktober 2025 |
| Bouw | |
|---|---|
| Type object | Woonhuis, eengezinswoning, vrijstaande woning |
| Soort bouw | Bestaande bouw |
| Bouwperiode | 1995 |
| Dakbedekking | Bitumen, Dakpannen |
| Type dak | Zadeldak |
| Isolatievormen | Volledig geïsoleerd |
| Oppervlaktes en inhoud | |
|---|---|
| Perceeloppervlakte | 560 m² |
| Woonoppervlakte | 170 m² |
| Inhoud | 773 m³ |
| Oppervlakte overige inpandige ruimten | 48 m² |
| Oppervlakte gebouwgebonden buitenruimte | 1 m² |
| Indeling | |
|---|---|
| Aantal bouwlagen | 2 |
| Aantal kamers | 4 (waarvan 3 slaapkamers) |
| Aantal badkamers | 1 |
| Locatie | |
|---|---|
| Ligging | Dichtbij openbaar vervoer |
| Tuin | |
|---|---|
| Type | Achtertuin |
| Hoofdtuin | Ja |
| Oriëntering | Noord west |
| Staat | Normaal |
| Tuin 2 - Type | Voortuin |
| Tuin 2 - Oriëntering | Zuidoost |
| Tuin 2 - Staat | Normaal |
| Energieverbruik | |
|---|---|
| Energielabel | A |
| CV ketel | |
|---|---|
| CV ketel | Remeha HR |
| Warmtebron | Gas |
| Bouwjaar | 2021 |
| Combiketel | Ja |
| Eigendom | Eigendom |
| Uitrusting | |
|---|---|
| Aantal parkeerplaatsen | 2 |
| Aantal overdekte parkeerplaatsen | 2 |
| Warm water | CV-ketel |
| Verwarmingssysteem | Centrale verwarming, Vloerverwarming (gedeeltelijk) |
| Parkeergelegenheid | Aangebouwde stenen garage |
| Glasvezelaansluiting aanwezig | Ja |
| Tuin aanwezig | Ja |
| Heeft een garage | Ja |
| Kadastrale gegevens | |
|---|---|
| Kadastrale aanduiding | Burgum G 5420 |
| Perceeloppervlakte | 560 m² |
| Omvang | Geheel perceel |
| Eigendomsituatie | Eigen grond |
Beschrijving
Royale vrijstaande woning met grote garage, bijkeuken en slaapkamer met badkamer op de begane grond.
Aan een brede, groene straat in een rustige woonwijk van Burgum staat deze royale en goed onderhouden vrijstaande woning. De woning biedt verrassend veel leefruimte, een heerlijk lichte woonkamer, een royale slaapkamer met aansluitende badkamer op de begane grond, een ruime bijkeuken en een extra grote inpandige garage. Dankzij de praktische indeling is de woning ideaal voor wie gelijkvloers wil wonen, maar biedt het ook volop ruimte voor een gezin of thuiswerkplek.
Ligging
Kolfbaan 47 is gelegen in een geliefde, ruim opgezette woonwijk met veel groen en een prettige, rustige uitstraling. De straat heeft een verzorgd karakter en biedt voldoende privacy.
Burgum is een levendig en compleet dorp met uitstekende voorzieningen: meerdere supermarkten, winkels, speciaalzaken, basisscholen en voortgezet onderwijs, huisarts, apotheek, sportverenigingen, tennisbanen, een modern zwembad en diverse horecagelegenheden.
De ligging is gunstig ten opzichte van de N356 en de Wâldwei (A7), waardoor steden als Leeuwarden, Drachten en Groningen uitstekend bereikbaar zijn.
De omgeving is bovendien rijk aan natuur en recreatiemogelijkheden — het Burgumer Mar, de Friese Wouden en talloze wandel- en fietsroutes liggen binnen handbereik.
Aan een brede, groene straat in een rustige woonwijk van Burgum staat deze royale en goed onderhouden vrijstaande woning. De woning biedt verrassend veel leefruimte, een heerlijk lichte woonkamer, een royale slaapkamer met aansluitende badkamer op de begane grond, een ruime bijkeuken en een extra grote inpandige garage. Dankzij de praktische indeling is de woning ideaal voor wie gelijkvloers wil wonen, maar biedt het ook volop ruimte voor een gezin of thuiswerkplek.
Ligging
Kolfbaan 47 is gelegen in een geliefde, ruim opgezette woonwijk met veel groen en een prettige, rustige uitstraling. De straat heeft een verzorgd karakter en biedt voldoende privacy.
Burgum is een levendig en compleet dorp met uitstekende voorzieningen: meerdere supermarkten, winkels, speciaalzaken, basisscholen en voortgezet onderwijs, huisarts, apotheek, sportverenigingen, tennisbanen, een modern zwembad en diverse horecagelegenheden.
De ligging is gunstig ten opzichte van de N356 en de Wâldwei (A7), waardoor steden als Leeuwarden, Drachten en Groningen uitstekend bereikbaar zijn.
De omgeving is bovendien rijk aan natuur en recreatiemogelijkheden — het Burgumer Mar, de Friese Wouden en talloze wandel- en fietsroutes liggen binnen handbereik.
Indeling
De entree bevindt zich aan de voorzijde van de woning en geeft toegang tot de ruime hal met toilet en trapopgang. De lichte woonkamer is royaal en sfeervol, met grote ramen die zorgen voor een prettige lichtinval en uitzicht op de groene straatzijde. De gesloten keuken is verzorgd, praktisch ingericht en biedt voldoende ruimte voor een eethoek. Aansluitend bevindt zich de bijkeuken, met ruimte voor witgoed en extra opbergruimte. Aan de achterzijde van de woning ligt een ruime slaapkamer met aangrenzende badkamer, voorzien van inloopdouche, ligbad, wastafel en toilet. Ideaal voor levensloopbestendig wonen of gastenverblijf. De inpandige garage is bijzonder royaal: verlengd en breder dan standaard, waardoor er voldoende plek is voor een auto, fietsen, hobbyruimte of werkplaats.
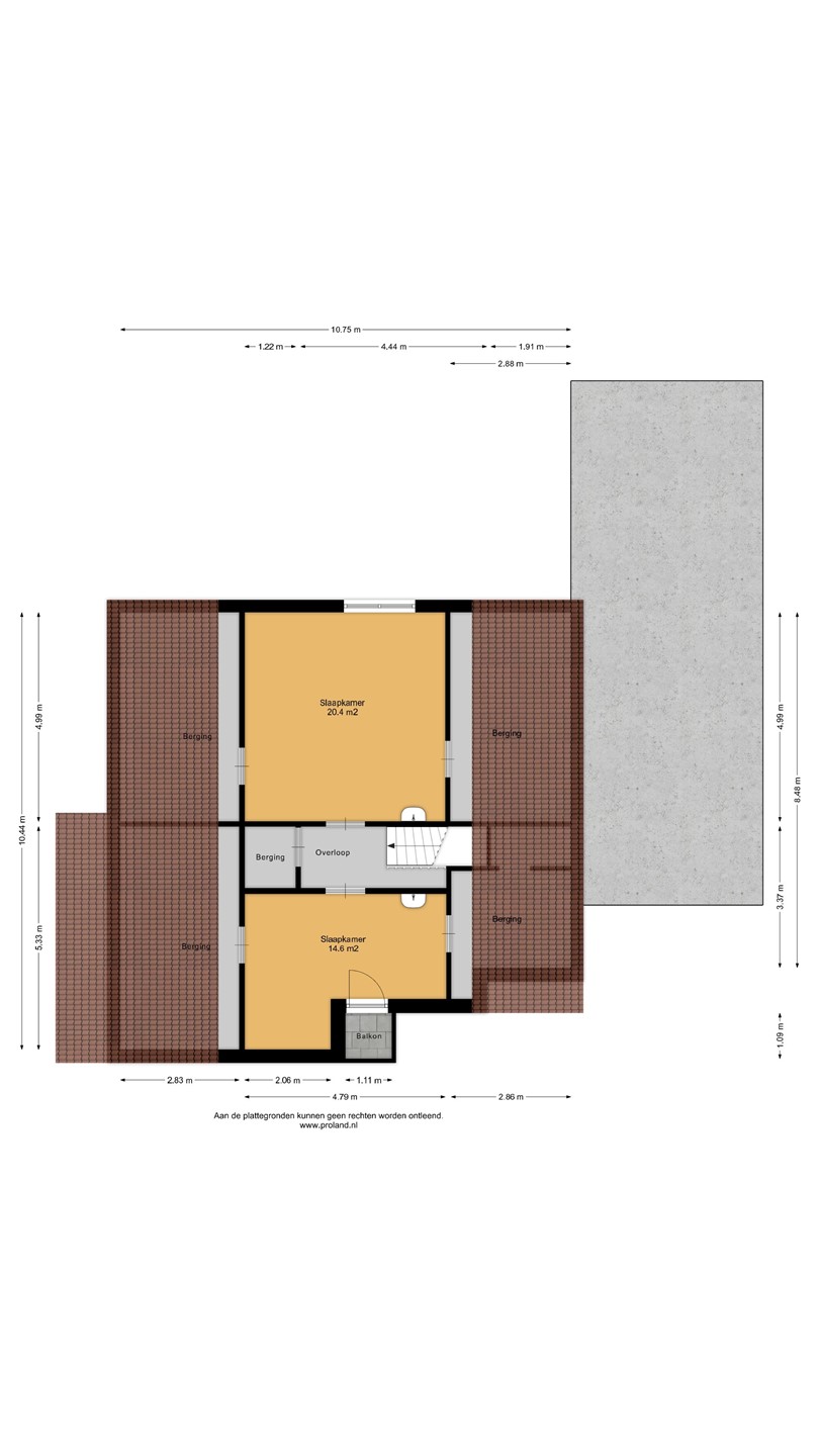
Eerste verdieping
De overloop biedt toegang tot twee ruime slaapkamers. De slaapkamer aan de achterzijde is extra groot en kan eenvoudig worden opgesplitst om een derde slaapkamer te realiseren. De woning is hiermee ook bijzonder geschikt voor gezinnen of voor wie ruimte zoekt voor logeerkamer of kantoor.
Tuin
De tuin is onderhoudsvriendelijk aangelegd en netjes verzorgd. De achtertuin biedt veel privacy en ruimte voor een terras of zithoek. De voortuin en oprit zijn eveneens goed onderhouden en bieden parkeergelegenheid op eigen terrein.
Bijzonderheden
• Royale vrijstaande woning met verrassend veel ruimte;
• Slaap- en badkamer op de begane grond;
• Gesloten keuken met aangrenzende bijkeuken;
• Zeer ruime, verlengde inpandige garage;
• Twee ruime slaapkamers op de verdieping (mogelijkheid tot derde slaapkamer);
• Onderhoudsvriendelijke tuin;
• Schilderwerk en onderhoud goed uitgevoerd;
• Rustige ligging aan brede, groene straat;
• Compleet voorzieningenniveau in Burgum;
• Centrale ligging t.o.v. Leeuwarden, Drachten en Groningen.
• Slaap- en badkamer op de begane grond;
• Gesloten keuken met aangrenzende bijkeuken;
• Zeer ruime, verlengde inpandige garage;
• Twee ruime slaapkamers op de verdieping (mogelijkheid tot derde slaapkamer);
• Onderhoudsvriendelijke tuin;
• Schilderwerk en onderhoud goed uitgevoerd;
• Rustige ligging aan brede, groene straat;
• Compleet voorzieningenniveau in Burgum;
• Centrale ligging t.o.v. Leeuwarden, Drachten en Groningen.