Algemeen
Degelijke vrijstaande woning met carport, schuur/werkplaats, berging en zolder op royaal perceel
Aan de Jeltingalaan in Buitenpost staat deze vrijstaande woning met een carport en een schuur met werkplaats, berging en zolder. De woning staat op een ruim perceel en biedt veel gebruiksgemak en comfort. Een fijne gezinswoning met volop mogelijkheden, gelegen op een mooie plek in het dorp.
Aan de Jeltingalaan in Buitenpost staat deze vrijstaande woning met een carport en een schuur met werkplaats, berging en zolder. De woning staat op een ruim perceel en biedt veel gebruiksgemak en comfort. Een fijne gezinswoning met volop mogelijkheden, gelegen op een mooie plek in het dorp.
-
Kenmerken
Alle kenmerken Type object Woonhuis, eengezinswoning, vrijstaande woning Bouwperiode 1959 Status Nieuw in verkoop Aangeboden sinds Zaterdag 24 januari 2026 -
Locatie
Kenmerken
| Overdracht | |
|---|---|
| Referentienummer | 00458 |
| Vraagprijs | € 425.000,- k.k. |
| Inrichting | Niet gestoffeerd |
| Inrichting | Niet gemeubileerd |
| Status | Nieuw in verkoop |
| Aanvaarding | In overleg |
| Aangeboden sinds | Zaterdag 24 januari 2026 |
| Bouw | |
|---|---|
| Type object | Woonhuis, eengezinswoning, vrijstaande woning |
| Soort bouw | Bestaande bouw |
| Bouwperiode | 1959 |
| Dakbedekking | Dakpannen |
| Type dak | Zadeldak |
| Isolatievormen | Grotendeels dubbel glas |
| Oppervlaktes en inhoud | |
|---|---|
| Perceeloppervlakte | 496 m² |
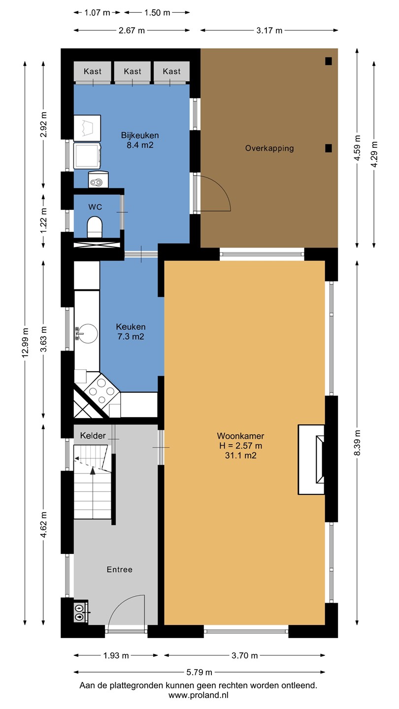
| Woonoppervlakte | 109 m² |
| Inhoud | 433 m³ |
| Oppervlakte overige inpandige ruimten | 4 m² |
| Oppervlakte externe bergruimte | 67 m² |
| Oppervlakte gebouwgebonden buitenruimte | 14 m² |
| Indeling | |
|---|---|
| Aantal bouwlagen | 2 |
| Aantal kamers | 4 (waarvan 3 slaapkamers) |
| Aantal badkamers | 1 |
| Locatie | |
|---|---|
| Ligging | Dichtbij openbaar vervoer |
| Tuin | |
|---|---|
| Type | Achtertuin |
| Oriëntering | Noord-oost |
| Staat | Normaal |
| Tuin 2 - Type | Voortuin |
| Tuin 2 - Oriëntering | Zuid-west |
| Tuin 2 - Staat | Normaal |
| Energieverbruik | |
|---|---|
| Energielabel | F |
| CV ketel | |
|---|---|
| CV ketel | Intergas HRE |
| Warmtebron | Gas |
| Bouwjaar | 2023 |
| Combiketel | Ja |
| Eigendom | Eigendom |
| Uitrusting | |
|---|---|
| Aantal parkeerplaatsen | 2 |
| Aantal overdekte parkeerplaatsen | 1 |
| Warm water | CV-ketel |
| Verwarmingssysteem | Centrale verwarming |
| Badkamervoorzieningen | Douche, Wastafel |
| Glasvezelaansluiting aanwezig | Ja |
| Tuin aanwezig | Ja |
| Heeft schuur/berging | Ja |
| Kadastrale gegevens | |
|---|---|
| Kadastrale aanduiding | Buitenpost A 3016 |
| Perceeloppervlakte | 496 m² |
| Omvang | Geheel perceel |
| Eigendomsituatie | Eigen grond |
Beschrijving
Degelijke vrijstaande woning met carport, schuur/werkplaats, berging en zolder op royaal perceel
Aan de Jeltingalaan in Buitenpost staat deze vrijstaande woning met een carport en een schuur met werkplaats, berging en zolder. De woning staat op een ruim perceel en biedt veel gebruiksgemak en comfort. Een fijne gezinswoning met volop mogelijkheden, gelegen op een mooie plek in het dorp.
Aan de Jeltingalaan in Buitenpost staat deze vrijstaande woning met een carport en een schuur met werkplaats, berging en zolder. De woning staat op een ruim perceel en biedt veel gebruiksgemak en comfort. Een fijne gezinswoning met volop mogelijkheden, gelegen op een mooie plek in het dorp.
Indeling
Entree, lichte woonkamer met plek voor een gezellige zithoek en eethoek, keuken met toegang tot de bijkeuken en het toilet.
Eerste verdieping
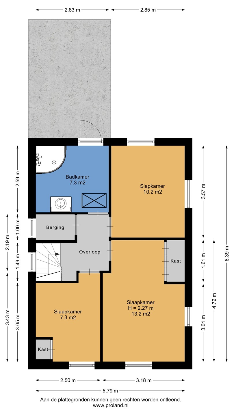
Drie slaapkamers en een badkamer met de basisvoorzieningen.
Tuin
Rondom de woning ligt een ruime tuin met veel privacy en mogelijkheden. De achtertuin is diep en biedt voldoende plek voor een terras, speeltoestellen of een groentetuin. Hier is altijd wel een zonnig of juist beschut plekje te vinden. De tuin is praktisch ingericht en biedt volop ruimte voor buitenleven en ontspanning.
Schuur, werkplaats en berging
Op het perceel staat een schuur met werkplaats, berging en zolder, ideaal voor wie klust, extra opslagruimte zoekt of een hobby wil uitoefenen. De zolder boven de werkplaats biedt extra bergruimte of de mogelijkheid om een werk- of hobbyruimte te creëren. Daarnaast is er een carport, praktisch voor het parkeren van een auto.
Schuur, werkplaats en berging
Op het perceel staat een schuur met werkplaats, berging en zolder, ideaal voor wie klust, extra opslagruimte zoekt of een hobby wil uitoefenen. De zolder boven de werkplaats biedt extra bergruimte of de mogelijkheid om een werk- of hobbyruimte te creëren. Daarnaast is er een carport, praktisch voor het parkeren van een auto.
Bijzonderheden
- Schuur met werkplaats, berging en zolder;
- Carport aanwezig;
- Bijkeuken aanwezig;
- Net sanitair en keuken;
- Ruim perceel met veel mogelijkheden;
- Gelegen aan een brede straat met goede bereikbaarheid;
- Nabij winkels, scholen en treinstation.
Omgeving
De woning ligt in Buitenpost, een gezellig en levendig dorp met een compleet aanbod aan voorzieningen. In de directe omgeving vindt u supermarkten, winkels, scholen, sportverenigingen en een medisch centrum. Ook het treinstation ligt op korte afstand, met goede verbindingen naar Leeuwarden, Groningen en Dokkum.
Een keurige en verzorgde woning met carport, schuur/werkplaats met berging en zolder, ruime tuin en een fijne plek om te wonen nabij het centrum van Buitenpost.
- Carport aanwezig;
- Bijkeuken aanwezig;
- Net sanitair en keuken;
- Ruim perceel met veel mogelijkheden;
- Gelegen aan een brede straat met goede bereikbaarheid;
- Nabij winkels, scholen en treinstation.
Omgeving
De woning ligt in Buitenpost, een gezellig en levendig dorp met een compleet aanbod aan voorzieningen. In de directe omgeving vindt u supermarkten, winkels, scholen, sportverenigingen en een medisch centrum. Ook het treinstation ligt op korte afstand, met goede verbindingen naar Leeuwarden, Groningen en Dokkum.
Een keurige en verzorgde woning met carport, schuur/werkplaats met berging en zolder, ruime tuin en een fijne plek om te wonen nabij het centrum van Buitenpost.