Algemeen
Ruime en uitgebouwde twee-onder-een-kapwoning op een rustige locatie in Gorredijk
Aan een rustige straat in de geliefde woonwijk aan de Rattelwacht staat deze verzorgde en verrassend ruime twee-onder-een-kapwoning. Door de ligging aan een straat met uitsluitend bestemmingsverkeer geniet je hier van veel rust, privacy en voldoende parkeergelegenheid. De groene buffer rondom zorgt voor een pre... Meer informatie
Aan een rustige straat in de geliefde woonwijk aan de Rattelwacht staat deze verzorgde en verrassend ruime twee-onder-een-kapwoning. Door de ligging aan een straat met uitsluitend bestemmingsverkeer geniet je hier van veel rust, privacy en voldoende parkeergelegenheid. De groene buffer rondom zorgt voor een pre... Meer informatie
-
Kenmerken
Alle kenmerken Type object Woonhuis, eengezinswoning, geschakelde twee onder een kap woning Bouwperiode 1978 Status Verkocht Aangeboden sinds Woensdag 28 mei 2025 -
Locatie
Kenmerken
| Overdracht | |
|---|---|
| Referentienummer | 00427 |
| Vraagprijs | € 325.000,- k.k. |
| Status | Verkocht |
| Aanvaarding | In overleg |
| Aangeboden sinds | Woensdag 28 mei 2025 |
| Laatste wijziging | Zaterdag 26 juli 2025 |
| Bouw | |
|---|---|
| Type object | Woonhuis, eengezinswoning, geschakelde twee onder een kap woning |
| Soort bouw | Bestaande bouw |
| Bouwperiode | 1978 |
| Dakbedekking | Dakpannen |
| Type dak | Zadeldak |
| Isolatievormen | Dakisolatie, Muurisolatie, Vloerisolatie |
| Oppervlaktes en inhoud | |
|---|---|
| Perceeloppervlakte | 246 m² |
| Woonoppervlakte | 145 m² |
| Inhoud | 520 m³ |
| Oppervlakte externe bergruimte | 6,7 m² |
| Oppervlakte gebouwgebonden buitenruimte | 2,1 m² |
| Indeling | |
|---|---|
| Aantal bouwlagen | 3 |
| Aantal kamers | 5 (waarvan 4 slaapkamers) |
| Aantal badkamers | 1 |
| Locatie | |
|---|---|
| Ligging | Aan rustige weg |
| Tuin | |
|---|---|
| Type | Achtertuin |
| Hoofdtuin | Ja |
| Oriëntering | Noorden |
| Staat | Normaal |
| Tuin 2 - Type | Voortuin |
| Tuin 2 - Oriëntering | Zuiden |
| Tuin 2 - Staat | Normaal |
| Energieverbruik | |
|---|---|
| Energielabel | B |
| CV ketel | |
|---|---|
| CV ketel | Remeha HR |
| Warmtebron | Gas |
| Bouwjaar | 2018 |
| Combiketel | Ja |
| Eigendom | Huur |
| Uitrusting | |
|---|---|
| Warm water | CV-ketel |
| Verwarmingssysteem | Centrale verwarming |
| Keukenvoorzieningen | Inbouwapparatuur |
| Badkamervoorzieningen | Douche, Ligbad, Wastafel |
| Tuin aanwezig | Ja |
| Heeft schuur/berging | Ja |
| Heeft zonnepanelen | Ja |
| Kadastrale gegevens | |
|---|---|
| Kadastrale aanduiding | Gorredijk B 3057 |
| Perceeloppervlakte | 246 m² |
| Omvang | Geheel perceel |
| Eigendomsituatie | Eigen grond |
Beschrijving
Ruime en uitgebouwde twee-onder-een-kapwoning op een rustige locatie in Gorredijk
Aan een rustige straat in de geliefde woonwijk aan de Rattelwacht staat deze verzorgde en verrassend ruime twee-onder-een-kapwoning. Door de ligging aan een straat met uitsluitend bestemmingsverkeer geniet je hier van veel rust, privacy en voldoende parkeergelegenheid. De groene buffer rondom zorgt voor een prettige en beschutte woonomgeving.
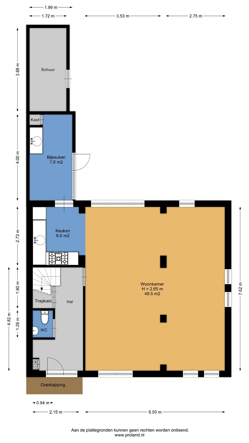
Wat deze woning bijzonder maakt, is de royale uitbouw over de volledige breedte van de woning. Hierdoor is een speelse en lichte woonkamer ontstaan van maar liefst ca. 48 m². De nette open keuken sluit hier mooi op aan en is voorzien van de benodigde inbouwapparatuur en werkruimte. Een comfortabele leefruimte met volop mogelijkheden.
Aan een rustige straat in de geliefde woonwijk aan de Rattelwacht staat deze verzorgde en verrassend ruime twee-onder-een-kapwoning. Door de ligging aan een straat met uitsluitend bestemmingsverkeer geniet je hier van veel rust, privacy en voldoende parkeergelegenheid. De groene buffer rondom zorgt voor een prettige en beschutte woonomgeving.
Wat deze woning bijzonder maakt, is de royale uitbouw over de volledige breedte van de woning. Hierdoor is een speelse en lichte woonkamer ontstaan van maar liefst ca. 48 m². De nette open keuken sluit hier mooi op aan en is voorzien van de benodigde inbouwapparatuur en werkruimte. Een comfortabele leefruimte met volop mogelijkheden.
Indeling
Entree met meterkast, toilet en trapkast. De royale woonkamer is voorzien van een eigentijdse kleurstelling, wat zorgt voor een prettige sfeer. De open keuken is praktisch ingericht. Aangrenzend bevindt zich de geïsoleerde bijkeuken met vloerverwarming, aanrechtblad en aansluitingen voor witgoed.
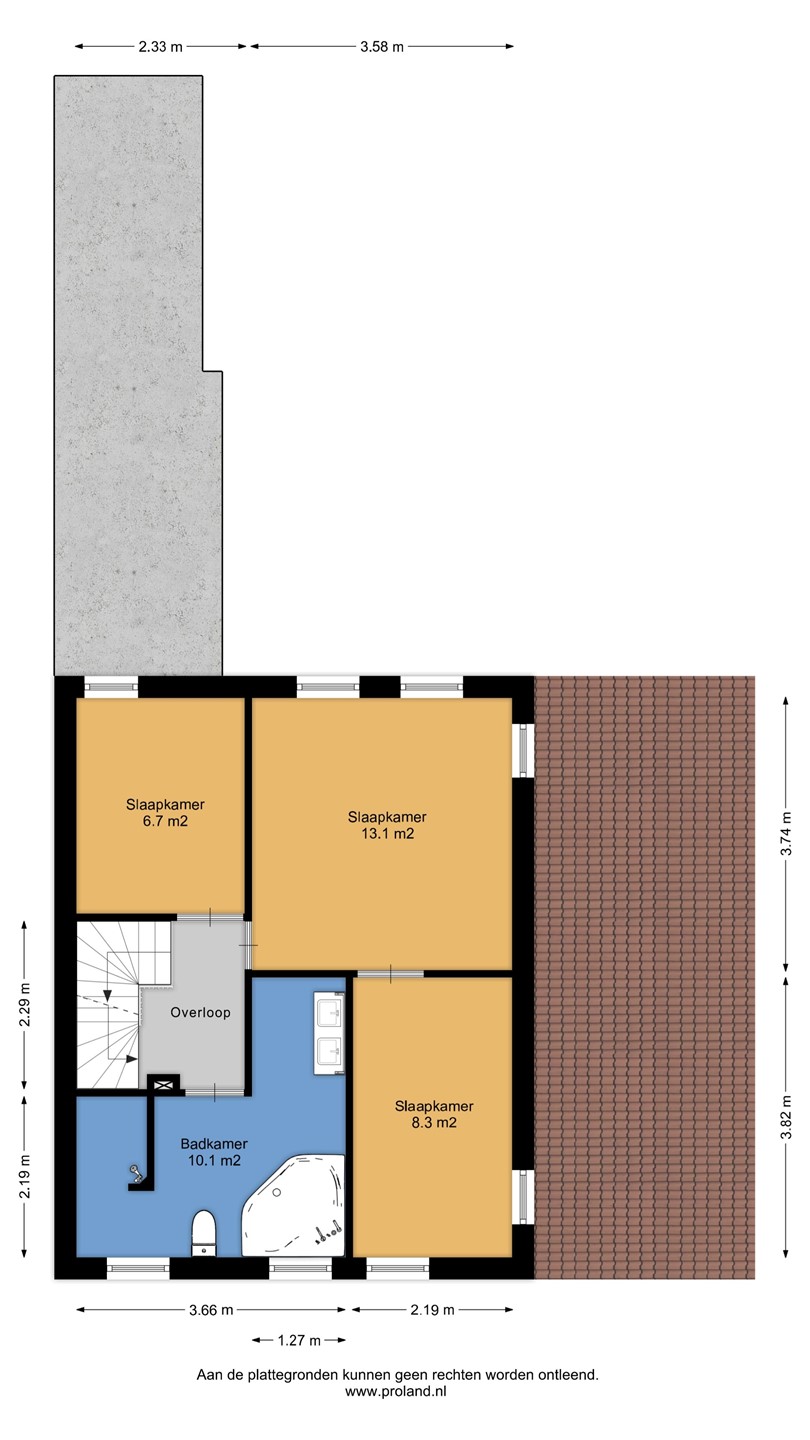
Eerste verdieping
De indeling van de eerste verdieping is in het verleden aangepast en biedt verrassend veel ruimte. De master bedroom beschikt over een eigen walk-in closet, die eerder dienst heeft gedaan als extra slaapkamer. De badkamer is royaal opgezet en voorzien van een ligbad, aparte douche, tweede toilet en dubbele wastafel. Oorspronkelijk waren er drie slaapkamers op deze verdieping; dit is eventueel weer te realiseren.
Tweede verdieping
Via een vaste trap bereik je de tweede verdieping. Hier bevindt zich een royale vierde slaapkamer met extra bergruimte en aansluiting voor witgoed. Deze ruimte is eventueel op te splitsen in twee aparte slaapkamers.
Tuin
De achtertuin is opnieuw aangelegd en biedt volop privacy. De tuin beschikt over een achterom en een berging. Dankzij de verzorgde staat en praktische indeling is het een fijne plek om buiten te ontspannen of te tuinieren.
Bijzonderheden
- Royale uitbouw over de volledige breedte (bijna 3 meter);
- Betonnen begane grond- en verdiepingsvloeren;
- Energielabel B;
- 12 zonnepanelen (2021, eigendom);
- Tweede verdieping eventueel op te splitsen in twee slaapkamers.
Wonen in Gorredijk
Gorredijk is een levendige en goed bereikbare plaats met een compleet voorzieningenniveau. Winkels, scholen, sportverenigingen en openbaar vervoer zijn allen op korte afstand bereikbaar. De ligging nabij de A7 maakt het een aantrekkelijke woonplaats voor forenzen.
Interesse?
Maak dan snel een afspraak voor een bezichtiging. Deze ruime woning wil je niet mislopen!
Let op: kopers tussen de 18 en 35 jaar kunnen onder voorwaarden in aanmerking komen voor eenmalige vrijstelling van overdrachtsbelasting.
- Betonnen begane grond- en verdiepingsvloeren;
- Energielabel B;
- 12 zonnepanelen (2021, eigendom);
- Tweede verdieping eventueel op te splitsen in twee slaapkamers.
Wonen in Gorredijk
Gorredijk is een levendige en goed bereikbare plaats met een compleet voorzieningenniveau. Winkels, scholen, sportverenigingen en openbaar vervoer zijn allen op korte afstand bereikbaar. De ligging nabij de A7 maakt het een aantrekkelijke woonplaats voor forenzen.
Interesse?
Maak dan snel een afspraak voor een bezichtiging. Deze ruime woning wil je niet mislopen!
Let op: kopers tussen de 18 en 35 jaar kunnen onder voorwaarden in aanmerking komen voor eenmalige vrijstelling van overdrachtsbelasting.