Onder optie: Skriesstrjitte Bouwnummer 5, 9271 EA De Westereen
€ 392.600,- v.o.n.
| Type object | Appartement, benedenwoning |
| Woonoppervlakte | 80 m² |
| Aanvaarding | In overleg |
| Status | Onder optie |
| Onderdeel van nieuwbouwproject | Skriesstrjitte |
Skriesstrjitte
Alles wat u zoekt in een woning vindt u in deze 13 nieuw te bouwen appartementen in het centrum van De Westereen (Nederlands: Zwaagwesteinde), verdeeld over drie bouwlagen. U woont hier rustig en hebt alle voorzieningen dichtbij. De appartementen zijn gebouwd voor de toekomst: ze zijn energiezuinig, gasloos, hebben een warmtepompinstallatie en vloerverwarming. Ze beschikken over twee slaapkamer... Meer informatie
-
Kenmerken
Alle kenmerken Type object Appartement, benedenwoning Bouwperiode 2026 Status Onder optie Aangeboden sinds Woensdag 15 oktober 2025 -
Locatie
Kenmerken
| Overdracht | |
|---|---|
| Referentienummer | 00442 |
| Prijs | € 392.600,- v.o.n. |
| Status | Onder optie |
| Aanvaarding | In overleg |
| Aangeboden sinds | Woensdag 15 oktober 2025 |
| Bouw | |
|---|---|
| Type object | Appartement, benedenwoning |
| Woonlaag | 1e woonlaag |
| Soort bouw | Nieuwbouw |
| Bouwperiode | 2026 |
| Type dak | Platdak |
| Isolatievormen | Volledig geïsoleerd |
| Oppervlaktes en inhoud | |
|---|---|
| Woonoppervlakte | 80 m² |
| Inhoud | 211 m³ |
| Indeling | |
|---|---|
| Aantal bouwlagen | 1 |
| Aantal kamers | 3 (waarvan 2 slaapkamers) |
| Aantal badkamers | 1 |
| Tuin | |
|---|---|
| Type | Achtertuin |
| Uitrusting | |
|---|---|
| Aantal parkeerplaatsen | 2 |
| Aantal overdekte parkeerplaatsen | 1 |
| Verwarmingssysteem | Warmtepomp |
| Tuin aanwezig | Ja |
| Heeft een garage | Ja |
| Vereniging van Eigenaren | |
|---|---|
| Ingeschreven bij de KvK | Ja |
| Jaarlijkse vergadering | Ja |
| Periodieke bijdrage | Ja |
| Opstal verzekering | Ja |
Beschrijving
Alles wat u zoekt in een woning vindt u in deze 13 nieuw te bouwen appartementen in het centrum van De Westereen (Nederlands: Zwaagwesteinde), verdeeld over drie bouwlagen. U woont hier rustig en hebt alle voorzieningen dichtbij. De appartementen zijn gebouwd voor de toekomst: ze zijn energiezuinig, gasloos, hebben een warmtepompinstallatie en vloerverwarming. Ze beschikken over twee slaapkamers, een balkon of (dak)terras en zijn licht en ruim. U kunt kiezen uit zes verschillende types, allemaal met een woonoppervlak van ca. 80 m2. Zeven appartementen hebben een berging en zes beschikken over een garage. Bergingen en garages bevinden zich achter de appartementen. Het complex heeft een warme uitstraling door de gebruikte kleuren en wordt gekenmerkt door een degelijke bouw met kwalitatief uitstekende materialen. Kortom, met deze toekomstbestendige woning is uw droomhuis binnen handbereik!
Het appartementencomplex is een project van De Woudengroep B.V., het ontwerp is van Studio DWP en het complex wordt gerealiseerd door Aannemingsbedrijf Kuin bv.
Ligging
De Westereen ligt in noordoost-Friesland, tussen Drachten (25 km) en Dokkum (15 km). Het dorp telt ruim 5.000 inwoners en beschikt over basisonderwijs, huisartsenpraktijk, apotheek en de nodige winkelvoorzieningen, waaronder meerdere supermarkten. In Dokkum en Drachten vindt u een ruim voorzieningenaanbod op het gebied van winkels, horeca, onderwijs, sport en cultuur. De Westereen ligt in het gebied van de Friese Wouden, een gebied dat zich kenmerkt door elzensingels, houtwallen en pingo’s (meertjes, overblijfselen van de laatste ijstijd). Er zijn fiets- en wandelroutes volop door deze mooie regio en in de natuurgebieden in de nabije omgeving. Aan de rand van het dorp ligt ook Sanjes Safari, een populair speel- en dierenpark voor de wijde omgeving. Verder heeft het dorp een jachthaven en een passantenhaventje. Ze liggen aan de vaarroute Lits-Lauwersmeer, die Drachten met Dokkum en het Lauwersmeer verbindt. De Westereen heeft een treinstation aan de spoorverbinding Leeuwarden-Groningen. Met de auto bent u in een kwartier in Dokkum en in 25 minuten in Drachten.
Het appartementencomplex is een project van De Woudengroep B.V., het ontwerp is van Studio DWP en het complex wordt gerealiseerd door Aannemingsbedrijf Kuin bv.
Ligging
De Westereen ligt in noordoost-Friesland, tussen Drachten (25 km) en Dokkum (15 km). Het dorp telt ruim 5.000 inwoners en beschikt over basisonderwijs, huisartsenpraktijk, apotheek en de nodige winkelvoorzieningen, waaronder meerdere supermarkten. In Dokkum en Drachten vindt u een ruim voorzieningenaanbod op het gebied van winkels, horeca, onderwijs, sport en cultuur. De Westereen ligt in het gebied van de Friese Wouden, een gebied dat zich kenmerkt door elzensingels, houtwallen en pingo’s (meertjes, overblijfselen van de laatste ijstijd). Er zijn fiets- en wandelroutes volop door deze mooie regio en in de natuurgebieden in de nabije omgeving. Aan de rand van het dorp ligt ook Sanjes Safari, een populair speel- en dierenpark voor de wijde omgeving. Verder heeft het dorp een jachthaven en een passantenhaventje. Ze liggen aan de vaarroute Lits-Lauwersmeer, die Drachten met Dokkum en het Lauwersmeer verbindt. De Westereen heeft een treinstation aan de spoorverbinding Leeuwarden-Groningen. Met de auto bent u in een kwartier in Dokkum en in 25 minuten in Drachten.
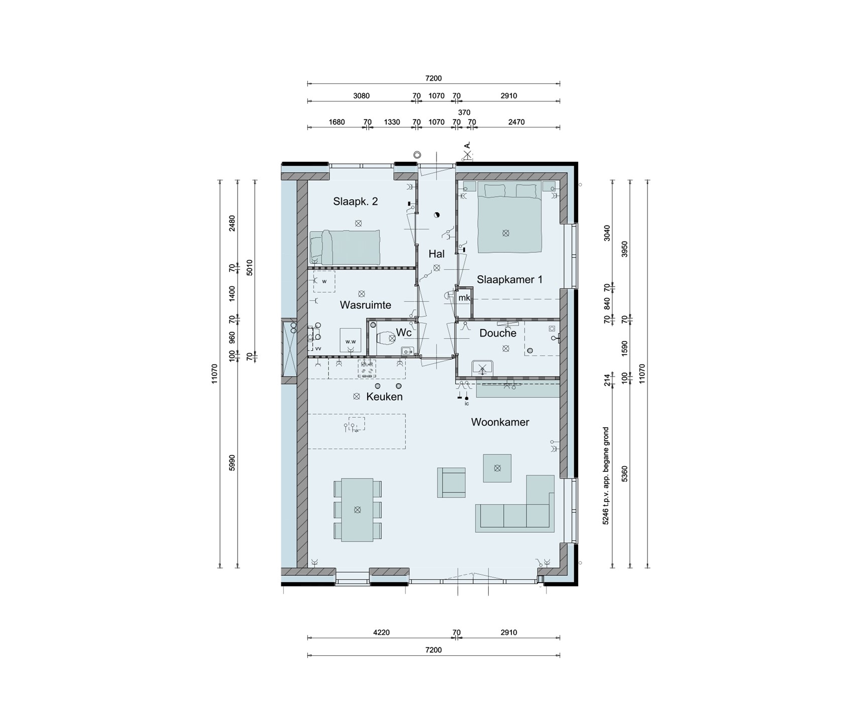
Indeling
In de entree van het complex bevinden zich de postkasten, de lift en het trappenhuis. Van type D zijn twee appartementen beschikbaar. Beide zijn het hoekwoningen. Het ene appartement ligt op de begane grond en heeft een garage. Het andere ligt op de eerste verdieping en heeft een berging. Het appartement op de begane grond beschikt over een terras en dat op de verdieping over een balkon. Het appartement op de verdieping bereikt u via trap of lift en een galerij. De woonkamer biedt plaats aan een zithoek en een eethoek. Door de hoekligging hebben beide woningen een extra raam. De open keuken is kamergericht en heeft een baropstelling. Het appartement heeft twee slaapkamers. Ze liggen tegenover elkaar. De badkamer is voorzien van douche en wastafel. Het toilet vindt u in de hal. In de wasruimte bevinden zich aansluitingen voor een witgoedopstelling.
Bijzonderheden
- De appartementen hebben een energieprestatie gelijk of beter dan de norm ‘Bijna Energie Neutrale Gebouwen (BENG), waardoor ze zeer duurzaam zijn;
- Het complex wordt uitgevoerd in beigegeel genuanceerde baksteen, met onderhoudsarme gevelbekleding van vezelcementplanken in kleikleur met achterisolatie;
- Voor de balustrades van de (betonnen) balkons zijn beigegrijze stalen lamellen gebruikt;
- De buitenkozijnen en draaiende delen zijn uitgevoerd in beigegrijze kunststof;
- De binnenkozijnen zijn van hardhout en de voordeuren zijn voorzien van een deurspion;
- Op de dakterrassen liggen betonnen drainagetegels, de balkonbalustrade is gemetseld en heeft relingen van beigegrijs verzinkt staal;
- De appartementen worden standaard opgeleverd zonder keuken en inclusief sanitair en tegelwerk (toilet en fonteintje, badkamer met toilet, wastafel en douchemengkraan met toebehoren);
- De koopprijs is vrij op naam;
- Individuele woonwensen: tegen verrekenprijs zijn diverse opties mogelijk voor tegels, vensterbanken en sanitair. Tegen meerprijs is ook veiligheidsbeglazing mogelijk.
- Het complex wordt uitgevoerd in beigegeel genuanceerde baksteen, met onderhoudsarme gevelbekleding van vezelcementplanken in kleikleur met achterisolatie;
- Voor de balustrades van de (betonnen) balkons zijn beigegrijze stalen lamellen gebruikt;
- De buitenkozijnen en draaiende delen zijn uitgevoerd in beigegrijze kunststof;
- De binnenkozijnen zijn van hardhout en de voordeuren zijn voorzien van een deurspion;
- Op de dakterrassen liggen betonnen drainagetegels, de balkonbalustrade is gemetseld en heeft relingen van beigegrijs verzinkt staal;
- De appartementen worden standaard opgeleverd zonder keuken en inclusief sanitair en tegelwerk (toilet en fonteintje, badkamer met toilet, wastafel en douchemengkraan met toebehoren);
- De koopprijs is vrij op naam;
- Individuele woonwensen: tegen verrekenprijs zijn diverse opties mogelijk voor tegels, vensterbanken en sanitair. Tegen meerprijs is ook veiligheidsbeglazing mogelijk.